The Maschmeyer’s – Bathroom Remodel

down net http20251212 85 rqtzim

★★★★★★

We’re very happy with the work done. They installed new entry doors on our old farm house. Jim was so easy to work with, very practical and willing and able line things up quickly for us finding exactly what we wanted. Darryl and Levi did great work. Were both efficient, friendly hard workers. No mess was left behind and the doors are fantastic! No more drafts!!

Fiona Maschmeyer

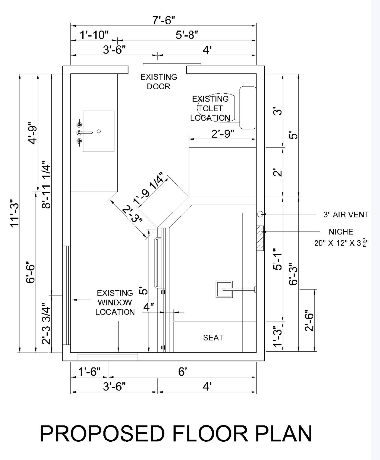
Full Rural Ensuite Bathroom Remodel

What started as a dated ensuite turned into a fully custom bathroom built for everyday use and long-term durability.

This renovation features a 4′ x 6′ custom tiled shower with full waterproofing, proper backer board, and a complete Schluter system behind the scenes. We added a quartz-capped bench and niche, tiled curb, and carefully detailed transitions so the shower performs as good as it looks. A new window was installed in the shower area and reframed to suit the layout, complete with proper insulation and exterior detailing.

The rest of the space was rebuilt around function and finish quality: a new vanity with quartz countertop, sink, and faucet, updated toilet and tile flooring, and tiled baseboards and transitions for a clean, low-maintenance edge. We upgraded the bath fan and ducting for better ventilation, added energy-efficient lighting and switching, and brought all plumbing and electrical up to current code.

To finish it off, the ensuite was styled with feature shiplap, floating shelves, and a barn door entry, tying together all the new fixtures, tile, and quartz into a cohesive master retreat that matches the rest of the home’s planned upgrades.

Transform Your Bathroom today!

3D Designs – Our Vision

The Finished Project!